260 Scott Lane Unit 302
Closed 9/18/2020 Sale Price $271,779

Our office is open and we are happy to help you. To achieve social distancing, we encourage you to call us if you need help rather than coming into the office. If you do come into the office, please consider wearing a mask. Please upload your applications through our intake form. You can also email it or drop it in our mailbox outside our office door. Be sure to double check with us to make sure we received it. Thank you for your patience during this time of social distancing.
Home for sale: 260 Scott Lane Unit 302
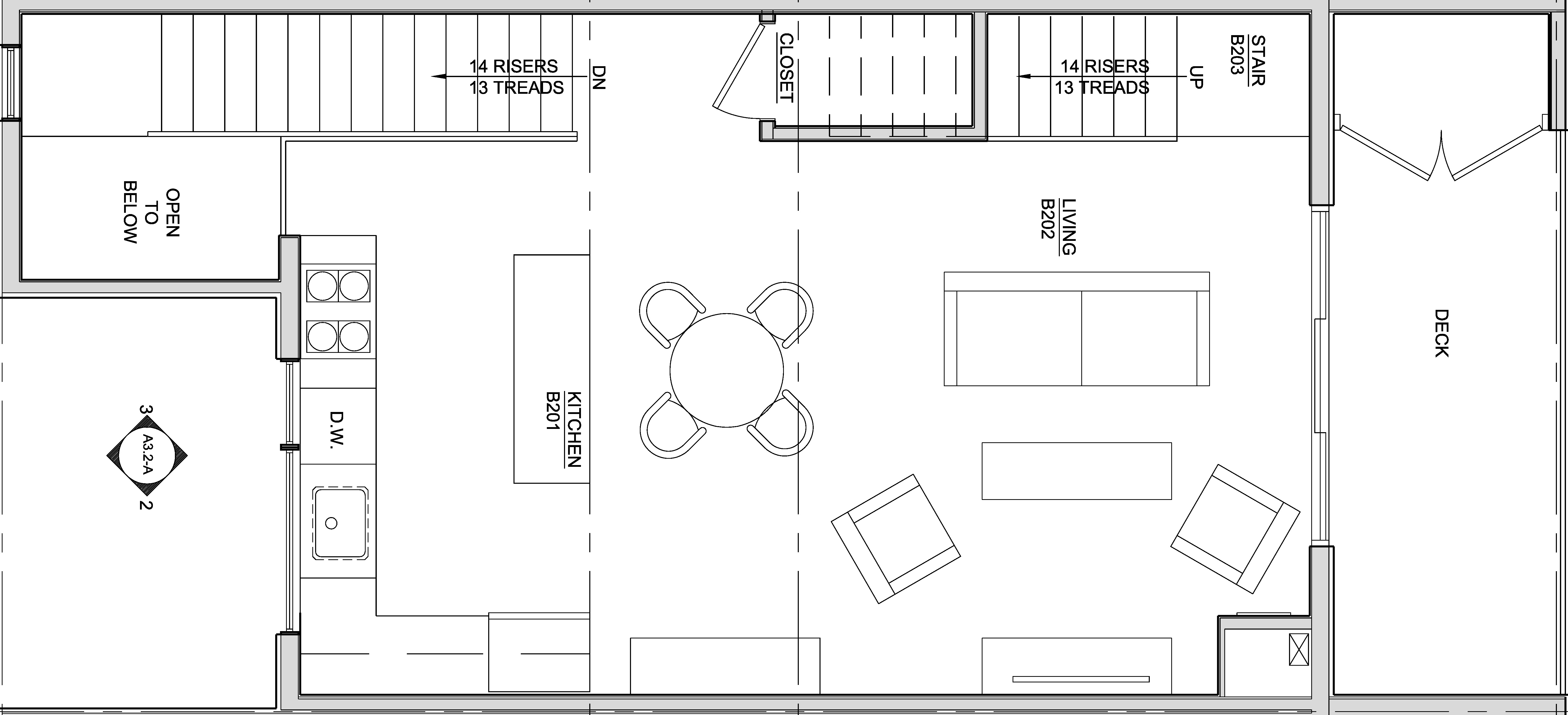
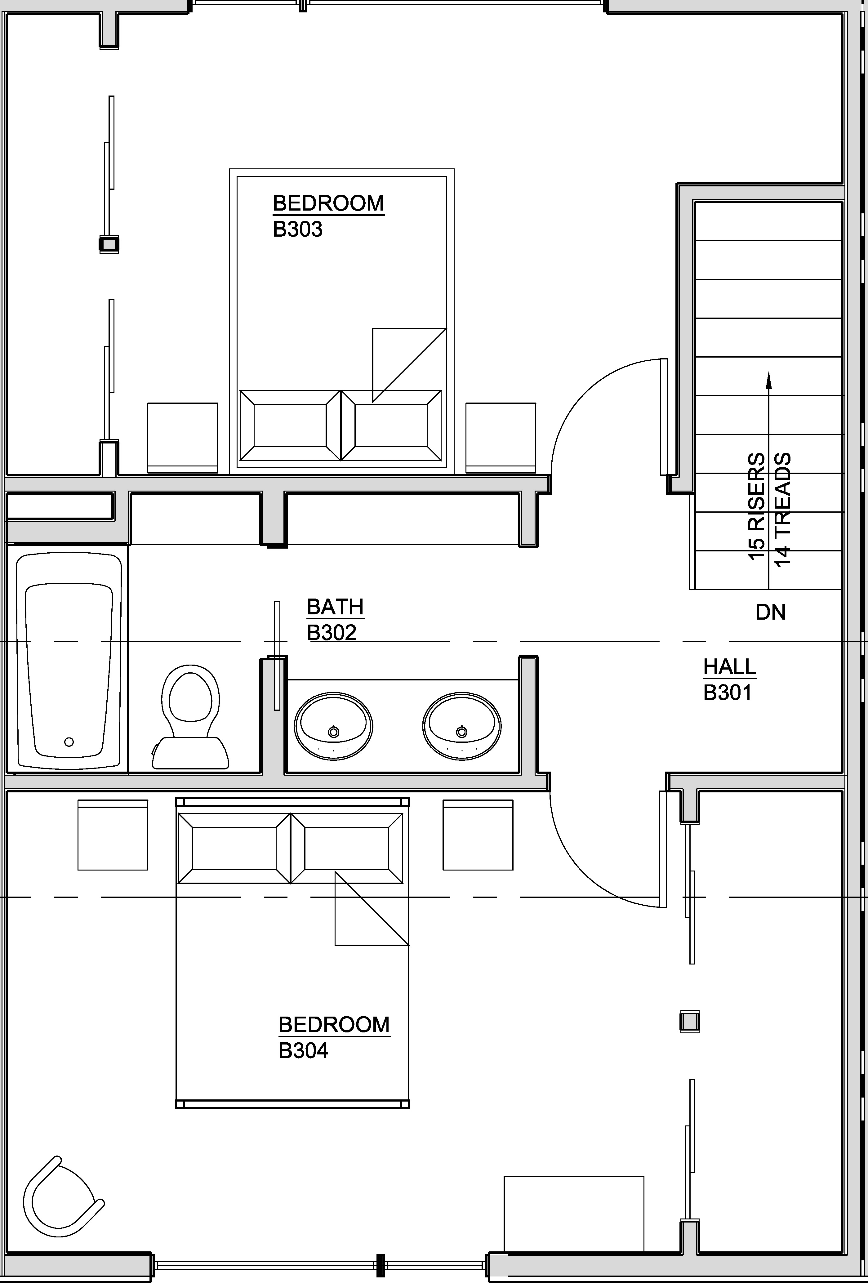
2-bedroom, 1-bathroom, 2- parking spaces, range, refrigerator, microwave, dishwasher, large deck, storage, 1,179 square feet
Home price - $271,779
Household income must be between 80% to 120% of the median family income (details below)
Household size must be 2 or more people
2 pets allowed (1 dog maximum)
Floor plans
3rd floor -2 sinks in the bathroom are shown, however it has one sink.
Eligibility Requirements:
Please note the policies in effect to enter any weighted drawing: Housing Department Rules & Regulations
Weighted Drawing Entry Eligibility Highlights:
The Housing Department Online Intake Form must be filled out and submitted to enter this or any drawing. If you have not submitted an Intake form prior to the beginning of this drawing (June 24th) you will not be eligible to apply.
At least one adult in the household must be employed full-time in Teton County for a minimum of one year. The Housing Department defines full-time employment as working a minimum of 1560 hours per year (30 hours/week average).
Must have a completed Lenders Qualification Worksheet with an up to date Credit Report (provided by a local lender, AnnualCreditReport.com, or CreditKarma.com), and a completed Home Buyer Education Class Certificate all must be attached to the Weighted Drawing Entry Sheet or on file with the Housing Department. The Housing Department will keep your Lender’s Qualification on file for one year. The Home Buyer Education Certificate is good indefinitely.
The loan amount on your Lender’s Qualification worksheet is for at least the purchase price minus your down payment of the home for which you are applying. You must be able to prove your ability to secure financing.
To be eligible to enter the drawing for these homes, your household’s gross income (before taxes) must fit into the range listed below, and your households net assets must not exceed the asset limit below:
|
|
Three Person Household | $79,704 to $119,556 |
Four Person Household | $88,560 to $132,840 |
Five Person Household | $95,645 to $143,467 |
Six Person Household | $102,730 to $154,094 |
Net Asset Limit | $265,680 |
Calculation of income:
Household income is based on the current income earned by all intended adult occupants of the Restricted Housing Unit at time of weighted drawing entry using the current household income to estimate an annual (12 month) income basis. Households must use their current income and may not make changes or adjustments during a drawing period.
Business income of a qualifying Household is calculated using an average of the last three (3) years of income on the business’ tax returns. A year to date profit and loss determination will also be used to calculate business income. If the business has not been operating for three (3) years, the Housing Department will average income over the time the business has been operating.
Deadline to Apply: Tuesday July 7th by 4:00 p.m. No late or incomplete entries will be allowed, no exceptions.
All forms need to enter into this weighted drawing are here, under "Ownership - Weighted Drawing Entry Forms".
You may receive one additional entry into the drawing for every year of verified full-time employment (minimum of 1,560 hours) in Teton County with a maximum of 10 years/entries.
Please click here for information for Critical Service Providers (CSPs).
We understand that our applications to enter into the weighted drawing take time and effort, and we do not want to disqualify you due to an oversight or misunderstanding about our process. Please bring your applications in prior to the due date so that we have time to work with you, make corrections, and give feedback if anything is wrong.
Example cost break down for a purchase price of $271,779:
3.5% down payment (required) | $9,512 |
Loan Amount | $262,267 |
Principal & Interest Payment (estimated 5%) | $1,408 |
Property Tax (estimate) | $129 |
Insurance (estimate) | $100 |
HOA dues (estimate) | $300 |
Total Estimated Monthly Payment | $1,937 |
Grove Master Rules & Regulations
Please talk to a local lender about closing costs, interest rates, and available loan programs to suit your financing needs. We recommend you choose a local lender.
Esto fue traducido usando google translate. Por favor disculpe cualquier error. Para obtener ayuda con las traducciones, comuníquese con One22: 307-739-4500.
Nuestra oficina está abierta y estamos encantados de ayudarlo. Para lograr el distanciamiento social, le recomendamos que nos llame si necesita ayuda en lugar de venir a la oficina. Si entra a la oficina, considere usar una máscara. Cargue sus solicitudes a través de nuestro formulario de admisión. También puede enviarlo por correo electrónico o dejarlo en nuestro buzón fuera de la puerta de nuestra oficina. Asegúrese de verificar con nosotros para asegurarse de que lo hayamos recibido. Gracias por su paciencia durante este tiempo de distanciamiento social.
Casa en venta: 260 Scott Lane Unidad 302
2 dormitorios, 1 baño, 2 estacionamientos, estufa, refrigerador, microondas, lavaplatos, terraza grande, almacenamiento, 1,179 pies cuadrados
Precio de la vivienda - $ 271,779
Los ingresos del hogar deben estar entre el 80% y el 120% del ingreso familiar medio (detalles a continuación)
El tamaño del hogar debe ser de 2 o más personas.
Se admiten 2 mascotas (1 perro máximo)
Planos de planta
3er piso -muestra 2 lavabos en el baño, sin embargo, creemos que es solo uno
Requisitos de elegibilidad:
Lea las políticas vigentes para ingresar a cualquier sorteo ponderado: Reglas y Regulaciones del Departamento de Vivienda, Sección 4: Sorteo ponderado (solo disponible en inglés. Comuníquese con One22 para obtener ayuda con las traducciones)
Puntos destacados de elegibilidad de entrada de sorteo ponderado:
El formulario de admisión en línea del Departamento de Vivienda debe completarse y enviarse para participar en este o cualquier sorteo. Si no ha enviado un formulario de admisión antes del comienzo de este sorteo (3 de junio), no será elegible para aplicar.
Al menos un adulto en el hogar debe estar empleado a tiempo completo en el Condado de Teton por un mínimo de un año. El Departamento de Vivienda define el empleo a tiempo completo como trabajar un mínimo de 1,560 horas por año (promedio de 30 horas / semana).
Debe tener una Hoja de trabajo de calificación de prestamistas completada con un Informe de crédito actualizado (proporcionado por un prestamista local, AnnualCreditReport.com o CreditKarma.com), y un Certificado completo de clase de educación para el comprador de vivienda, todo debe adjuntarse a la Hoja de entrada de sorteo ponderado o en el archivo del Departamento de Vivienda. El Departamento de Vivienda mantendrá la calificación de su prestamista en el archivo durante un año. El Certificado de Educación para el Comprador de Vivienda es válido indefinidamente.
El monto del préstamo en la hoja de trabajo de Calificación de su prestamista es al menos por el precio de compra menos el pago inicial de la vivienda que está solicitando. Debe poder demostrar su capacidad para asegurar el financiamiento.
Para ser elegible para participar en el sorteo de estas casas, el ingreso bruto de su hogar (antes de impuestos) debe ajustarse al rango que se detalla a continuación, y los activos netos de su hogar no deben exceder el límite de activos a continuación:
|
|
Hogar de tres personas | $79,705 to $119,556 |
Hogar de cuatro personas | $88,561 to $132,840 |
Hogar de cinco personas | $95,646 to $143,467 |
Hogar de seis personas | $102,731 to $154,094 |
Límite neto de activos | $265,680 |
Cálculo de ingresos:
Los ingresos del hogar se basan en los ingresos actuales ganados por todos los ocupantes adultos previstos de la Unidad de Vivienda Restringida al momento de ingresar al sorteo ponderado utilizando el ingreso actual del hogar para estimar una base de ingresos anual (12 meses). Los hogares deben usar sus ingresos actuales y no pueden hacer cambios o ajustes durante un período de sorteo.
Los ingresos comerciales de un hogar calificado se calculan utilizando un promedio de los últimos tres (3) años de ingresos en las declaraciones de impuestos de la empresa. Una determinación de pérdidas y ganancias del año hasta la fecha también se utilizará para calcular los ingresos del negocio. Si el negocio no ha estado operando por tres (3) años, el Departamento de Vivienda tendrá un ingreso promedio durante el tiempo que el negocio ha estado operando.
Fecha límite para solicitar: martes 7 de julio a las 4:00 p.m. No se permitirán entradas tardías o incompletas, sin excepciones.
Todos los formularios necesarios para ingresar en este sorteo ponderado están aquí, en "Ownership - Weighted Drawing Entry Forms) "Propiedad - Formularios de ingreso de sorteo ponderado".
Puede recibir una entrada adicional en el sorteo por cada año de empleo verificado a tiempo completo (mínimo de 1,560 horas) en el Condado de Teton con un máximo de 10 años / entradas.
Haga clic aquí para obtener información sobre proveedores de servicios críticos (CSP). (solo disponible en inglés. Comuníquese con One22 para obtener ayuda con las traducciones)
Entendemos que nuestras solicitudes para ingresar en el sorteo ponderado requieren tiempo y esfuerzo, y no queremos descalificarlo debido a un descuido o malentendido sobre nuestro proceso. Presente sus solicitudes antes de la fecha de vencimiento para que tengamos tiempo de trabajar con usted, hacer correcciones y dar su opinión si algo está mal.
Ejemplo de desglose de costos por un precio de compra de $ 271,779:
Pago inicial del 3.5% (requerido) | $9,512 |
Monto del préstamo | $262,267 |
Pago de capital e intereses (estimado 5%) | $1,408 |
Impuesto a la propiedad (estimado) | $129 |
Seguro (estimado) | $100 |
Cuotas de HOA (estimación) | $300 |
Pago mensual total estimado | $1,937 |
Los siguientes documentos solo están disponibles en inglés. Comuníquese con One22 o envíe un correo electrónico a housing@tetoncountywy.gov si necesita ayuda con las traducciones:
Special Restriction (Restriccion Especial)
First Amendment (Primera Enmienda)
Grove Master Rules & Regulations (Grove Master Reglas y Regulaciones)
Hable con un prestamista local sobre los costos de cierre, las tasas de interés y los programas de préstamos disponibles para satisfacer sus necesidades financieras. Le recomendamos que elija un prestamista local.